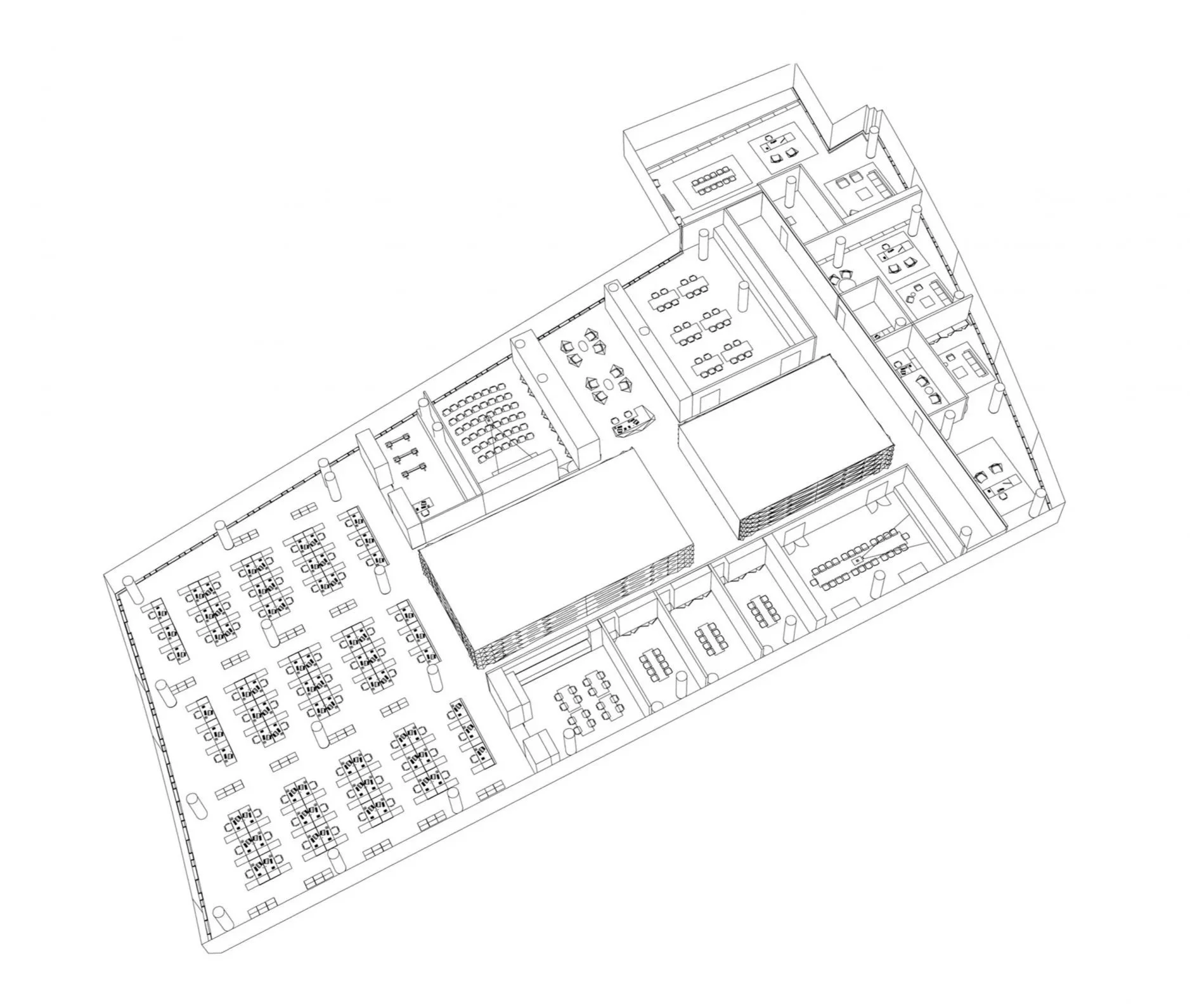
Hospitality Headquarters

Dubai, UAE

Project Designer: APS Designs
The UAE retail and hospitality leader’s new 20,000 sq ft headquarters in Dubai Design District, designed by APS Designs, embodies growth, innovation, and brand diversity. Featuring a striking diamond-shaped parametric core in white-to-brass tones, the space unites Fashion, Hospitality, and Sports divisions while blending form and function. Meeting rooms, showrooms, and offices surround the sculptural centerpiece, creating a dynamic, elegant, and immersive workplace that reflects the client’s vision and expansive portfolio.

Previous
Previous

Minerals Gallery

Next
Next

Tibi Headquarters